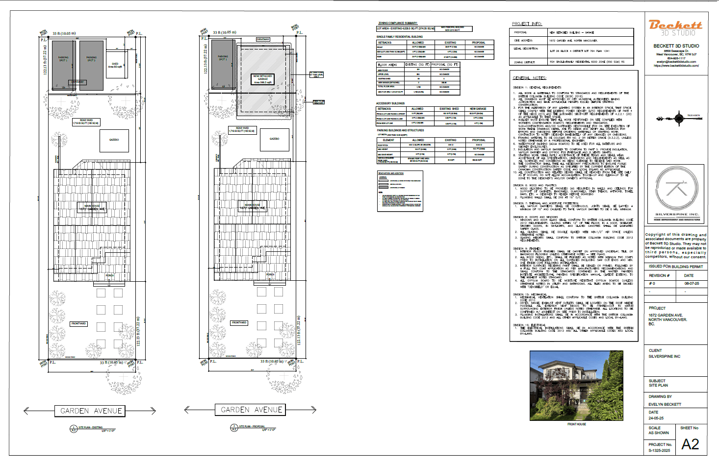
Silverspine Contracting specializes in high-quality accessory building construction, including garages, workshops, garden suites, laneway homes, and custom outbuildings. From design coordination and permitting to foundation, framing, and finishing, we deliver durable, functional structures tailored to your property and built to meet all local codes and standards.

How We Do It:
- Design & Planning: We work with you to create layouts that meet your storage, workspace, and lifestyle needs.
- Full Construction: We handle excavation, foundation work, framing, roofing, and finishing touches.
- Customization Options: We install cabinets, shelving, workbenches, and lighting to make your garage both functional and stylish.
Why Choose Us:
We combine expert design with precise construction to deliver garages that enhance your property’s value and suit your lifestyle.


